Nuevo diseño de oficina para empresa hidrocarburos.
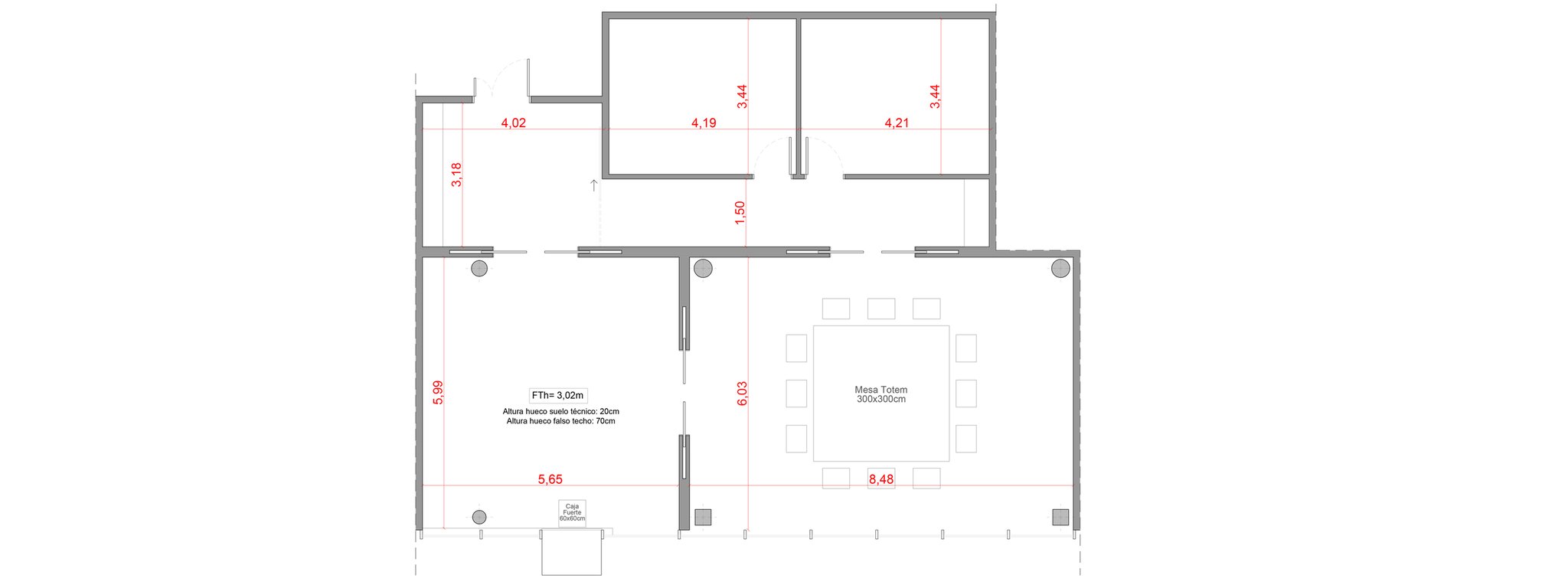
Reforma integral de una oficina desde el diseño hasta la dirección y control de obra, aportando además el desarrollo de sistema de control domótico. La propuesta modifica las estancias interiores buscando funcionalidad y estética, integrando tecnología avanzada para optimizar la eficiencia energética y el confort. Desde la planificación hasta la ejecución, nos aseguramos de que cada detalle reflejara los más altos estándares de calidad, logrando una obra innovadora y alineada con las necesidades del cliente.

Trabajos realizados:

Diseño, dirección de obra y desarrollo domótico

Uso:

Terciario

Fase del proyecto:

Ejecutado

Ubicación:

Pozuelo de Alarcón, Madrid

Superficie construida:

150 m²